Projet de construction
Un nouveau bâtimentpour le développement de la Haute École

Un projet pédagogique et institutionnel
Ce nouvel édifice destiné aux activités de la HE Vinci est un important projet de construction sur le campus de Woluwe qui répondra aux évolutions de l'enseignement supérieur, des métiers et des défis sociétaux qui nous attendent.
Le nouveau bâtiment sera dédié aux trois secteurs (Santé, Sciences humaines et sociales, Sciences et techniques). Les étudiantes et étudiants pourront y suivre des cours dans de nouveaux auditoires, seront en mesure de s'exercer à leur pratique professionnelle, et bénéficieront d'une bibliothèque ainsi que d'un learning center. Ils pourront également développer leur créativité au sein d'espaces collaboratifs, diversifiés et spécialisés.
Depuis plusieurs années la Haute École évolue, avec pour objectifs :
- de proposer des infrastructures modernes et adéquates ;
- de renforcer l'articulation entre la théorie, la pratique et la simulation de situations professionnelles.
La HE Vinci sur le campus de Woluwe c'est plus de 500 travailleuses et travailleurs, ainsi que plus de 5 000 étudiantes et étudiants.
Le projet s'inscrit dans la dynamique générale de revalorisation du campus initiée par l'UCLouvain en partenariat avec les différents acteurs.

Photomontage : implantation du projet sur le campus d'Alma
Image en en-tête : Perspective du projet à l’angle nord-est du Clos Chapelle-aux-Champs
Quelques images
Perspective du projet à la face est

Axonométrie sud-est

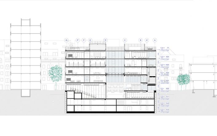
Coupe transversale

Informations pratiques
Ce chantier de construction, conçu par le consortium Dietmar Feichtinger Architectes | LOW Architecten | VK architects+engineers et réalisé par Valens SA et Eqwans Belux sera lancé à partir du 1er septembre 2025. Le terme est prévu pour la fin d'année 2027.
Conscients des impacts qu’un tel chantier peut entraîner, nous tenons à vous informer en toute transparence de son déroulement, des mesures mises en place pour en limiter les nuisances et des éventuelles contraintes qu’il pourrait entraîner ponctuellement. Nous mettons tout en œuvre pour préserver la qualité de vie dans le quartier pendant toute la durée des travaux.
Nuisances possibles
- Bruit en journée
- Circulation de véhicules de chantier
- Poussière
- Suppression temporaire de places de parkings aux abords du chantier
Mesures prises par l’entreprise
- Respect strict des horaires de chantier : du lundi au vendredi, de 07h à 18h
- Plan de circulation adapté et affiché sur site
- Nettoyage régulier des voiries empruntées
- Réduction maximale du bruit et des poussières
Nous mettrons régulièrement à jour cette section afin de témoigner de l'avancée du projet.

Page mise à jour le 16/09/2025